j'ai besion de faire un programme ladder sur somachine pour simuler le fonctionnement suivant:
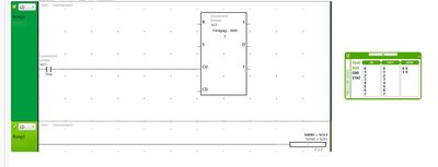
Lorsqu'on appuie sur un boutton poussoir liée à l'entrée %I0.1 un mot mémoire % Mw1 incrémente pour ce faire j'ai utilisé le bloc de fonction avec l'expression INC mais le probleme que la valeur %Mw1 n'incrémente pas de 1 mais de 10 et apres de 11 et apres de 12 ...... comment je peux faire pour incrementer de 1 ??
j'ai essayé d'utiliser le comteur %C0 ça bien marché mais par contre j'ai pas pu sauvegarder la valeur de compteur dans un mot mémoire de l'automate .
quelqu'un peut m'aider?? et merci en avance


