Projet : portier électro-hydraulique, schéma
-
HaroldMédoc
- Apprend le binaire

- Messages : 7
- Enregistré le : 14 avr. 2020, 15:57
- Localisation : Gironde
Projet : portier électro-hydraulique, schéma
Bonjour,
Je cherche à concevoir l'automatisme d'un portier de poulailler mais je bute sur le schéma de commande.
Une porte doit s'ouvrir le matin, se fermer le soir et l'eau de l'abreuvoir doit être renouvelée tous les jours.
Le système est constitué d'une porte mobile actionnée par un récipient qui fait contrepoids.
Des contacts mécaniques de fin de course sur le bas et le haut de la porte.
Une photorésistance détecte le lever du jour et la tombée de la nuit.
Le matin une électrovanne raccordée au réseau d'eau s'ouvre pour remplir le récipient, sous le poids de l'eau ce dernier descend et fait remonter la porte, arrivé au fin de course haut l'électrovanne se referme.
Le soir une électrovanne raccordée au récipient s'ouvre pour remplir l'abreuvoir, le poids du récipient diminue et ne s'oppose plus au poids de la porte. Quand cette dernière arrive au fin de course bas, l'électrovanne se referme.
Je cherche à éviter que les électrovannes ou les relais nécessaires restent excités constamment.
Comme le système est susceptible d'être alimenté par une batterie 12V rechargée par panneau solaire il doit être le moins énergivore possible.
Le choix des composants est dicté par la facilité d'approvisionnement et de remplacement, des relais ça se trouve dans les voitures, des fins de course beaucoup de machines en comportent, une photorésistance, élément clé, ça se trouve aussi facilement.
Au final, ce n'est pas pour vendre un produit, une fois élaboré le système sera partagé en open-source.
Merci de votre aide.
Ci joint le schéma de principe que j'ai commencé à dessiner.
https://servimg.com/view/16892862/27
Je cherche à concevoir l'automatisme d'un portier de poulailler mais je bute sur le schéma de commande.
Une porte doit s'ouvrir le matin, se fermer le soir et l'eau de l'abreuvoir doit être renouvelée tous les jours.
Le système est constitué d'une porte mobile actionnée par un récipient qui fait contrepoids.
Des contacts mécaniques de fin de course sur le bas et le haut de la porte.
Une photorésistance détecte le lever du jour et la tombée de la nuit.
Le matin une électrovanne raccordée au réseau d'eau s'ouvre pour remplir le récipient, sous le poids de l'eau ce dernier descend et fait remonter la porte, arrivé au fin de course haut l'électrovanne se referme.
Le soir une électrovanne raccordée au récipient s'ouvre pour remplir l'abreuvoir, le poids du récipient diminue et ne s'oppose plus au poids de la porte. Quand cette dernière arrive au fin de course bas, l'électrovanne se referme.
Je cherche à éviter que les électrovannes ou les relais nécessaires restent excités constamment.
Comme le système est susceptible d'être alimenté par une batterie 12V rechargée par panneau solaire il doit être le moins énergivore possible.
Le choix des composants est dicté par la facilité d'approvisionnement et de remplacement, des relais ça se trouve dans les voitures, des fins de course beaucoup de machines en comportent, une photorésistance, élément clé, ça se trouve aussi facilement.
Au final, ce n'est pas pour vendre un produit, une fois élaboré le système sera partagé en open-source.
Merci de votre aide.
Ci joint le schéma de principe que j'ai commencé à dessiner.
https://servimg.com/view/16892862/27
- itasoft
- Mi homme - Mi automate

- Messages : 7805
- Enregistré le : 20 oct. 2015, 10:15
- Localisation : Lyon
- Contact :
Re: Projet : portier électro-hydraulique, schéma
Slts,
Le plus simple et le plus compact c’est de faire ça avec un micro-contrôleur 12 Vcc ZELIO SR2B121JD
De plus à la place de la cellule on peut utiliser l’horodateur intégré
Le plus simple et le plus compact c’est de faire ça avec un micro-contrôleur 12 Vcc ZELIO SR2B121JD
De plus à la place de la cellule on peut utiliser l’horodateur intégré
Automaticien privé (de tout)
itasoft@free.fr
itasoft@free.fr
-
HaroldMédoc
- Apprend le binaire

- Messages : 7
- Enregistré le : 14 avr. 2020, 15:57
- Localisation : Gironde
Re: Projet : portier électro-hydraulique, schéma
Merci, en effet c'est une solution à retenir, d'autant plus que je ne connaissais vraiment pas ce genre de produit.
Néanmoins ce n'est pas vraiment dans l'esprit low-cost, low-tech que je recherche pour cette réalisation.
Je voudrais dans la mesure du possible des éléments que n'importe qui pourrait trouver facilement.
Il y a aussi le fait que je cherche à établir un schéma et que je n'y arrive pas pour l'instant.
Néanmoins ce n'est pas vraiment dans l'esprit low-cost, low-tech que je recherche pour cette réalisation.
Je voudrais dans la mesure du possible des éléments que n'importe qui pourrait trouver facilement.
Il y a aussi le fait que je cherche à établir un schéma et que je n'y arrive pas pour l'instant.
- itasoft
- Mi homme - Mi automate

- Messages : 7805
- Enregistré le : 20 oct. 2015, 10:15
- Localisation : Lyon
- Contact :
Re: Projet : portier électro-hydraulique, schéma
Programme ZELIO à reconduire en logique câblée
---------clic dessus pour zoom--------- ----------
Test simulation:
-Mettre la porte sur le FC_bas
-Activer la cellule à ON (jour)
-Commande du Relais_EV1 (remplissage)
-Attente
-Mettre la porte sur le FC_haut
-Arrêt du remplissage
-Attente
-Activer la cellule à OFF (nuit)
-Commande du Relais_EV2 (vidange)
-Attente
-Mettre la porte sur le FC_bas
-Arrêt de la vidange
---------clic dessus pour zoom--------- ----------
Test simulation:
-Mettre la porte sur le FC_bas
-Activer la cellule à ON (jour)
-Commande du Relais_EV1 (remplissage)
-Attente
-Mettre la porte sur le FC_haut
-Arrêt du remplissage
-Attente
-Activer la cellule à OFF (nuit)
-Commande du Relais_EV2 (vidange)
-Attente
-Mettre la porte sur le FC_bas
-Arrêt de la vidange
Automaticien privé (de tout)
itasoft@free.fr
itasoft@free.fr
- Béryl
- Mi homme - Mi automate

- Messages : 1953
- Enregistré le : 20 oct. 2015, 12:00
- Localisation : localhost
Re: Projet : portier électro-hydraulique, schéma
A vue de nez, je dirais que tu n'as besoin ni d'automate, ni de relais, à part un système LDR fiable.
Ta LDR NO en série avec le fdc haut NC de la porte pilote EV1.
Ta LDR NC avec le fdc bas NC de la porte pilote EV2.
C'est très simpliste. Aucun contrôle de remplissage du réservoir ni de l'abreuvoir.
Ce dernier ne se remplit que la nuit, tu remarqueras, quand les poules sont dedans et n'ont pas besoin d'eau.
L'idéal serait qu'il se remplisse le matin, non ?
Ta LDR NO en série avec le fdc haut NC de la porte pilote EV1.
Ta LDR NC avec le fdc bas NC de la porte pilote EV2.
C'est très simpliste. Aucun contrôle de remplissage du réservoir ni de l'abreuvoir.
Ce dernier ne se remplit que la nuit, tu remarqueras, quand les poules sont dedans et n'ont pas besoin d'eau.
L'idéal serait qu'il se remplisse le matin, non ?
- Bernardo59
- Mi homme - Mi automate

- Messages : 1054
- Enregistré le : 20 oct. 2015, 05:48
- Localisation : Nimes
- Contact :
Re: Projet : portier électro-hydraulique, schéma
Salut,
Si tu veux du low cost il te faut te tourner sur de l'arduino.
Il y a eu des projets plus ou moins similaire au tient:
https://forum.arduino.cc/index.php?topic=265520.0
http://fablab-chalon.fr/arduino-poulailler/
Si tu n'y connais rien en electronique, je te conseille de commencer par un starter kit (j'y suis passé...) :
https://store.arduino.cc/genuino-starter-kit
Si tu veux du low cost il te faut te tourner sur de l'arduino.
Il y a eu des projets plus ou moins similaire au tient:
https://forum.arduino.cc/index.php?topic=265520.0
http://fablab-chalon.fr/arduino-poulailler/
Si tu n'y connais rien en electronique, je te conseille de commencer par un starter kit (j'y suis passé...) :
https://store.arduino.cc/genuino-starter-kit
- itasoft
- Mi homme - Mi automate

- Messages : 7805
- Enregistré le : 20 oct. 2015, 10:15
- Localisation : Lyon
- Contact :
Re: Projet : portier électro-hydraulique, schéma
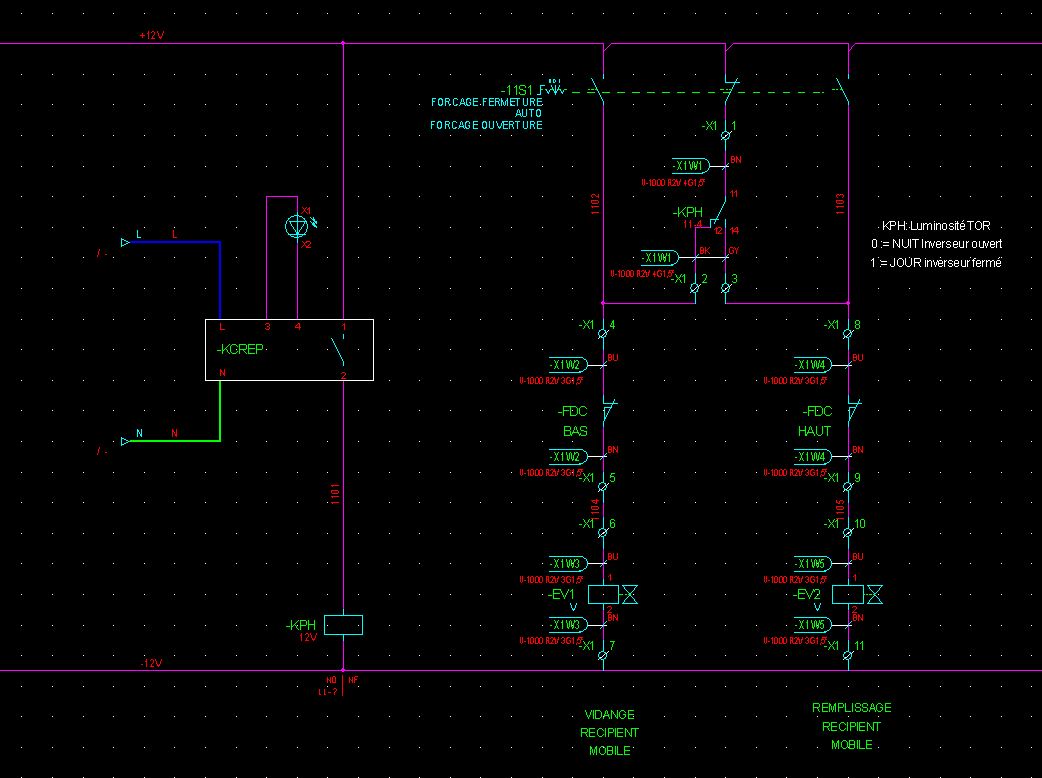
-----------Béryl a écrit : ↑15 avr. 2020, 09:04 A vue de nez, je dirais que tu n'as besoin ni d'automate, ni de relais, à part un système LDR fiable.
Ta LDR NO en série avec le fdc haut NC de la porte pilote EV1.
Ta LDR NC avec le fdc bas NC de la porte pilote EV2.
C'est très simpliste. Aucun contrôle de remplissage du réservoir ni de l'abreuvoir.
Ce dernier ne se remplit que la nuit, tu remarqueras, quand les poules sont dedans et n'ont pas besoin d'eau.
L'idéal serait qu'il se remplisse le matin, non ?
Effectivement surtout si par la suite tout doit être en 12 Vcc, (Je dois pas savoir faire simple) LOL
Schèma Beryl, plus simple tu meurs,
Automaticien privé (de tout)
itasoft@free.fr
itasoft@free.fr
-
Pierro
- Première mise en service

- Messages : 61
- Enregistré le : 17 mars 2020, 16:58
- Localisation : 127.0.0.1
Re: Projet : portier électro-hydraulique, schéma
Salut,
Je suis du même avis que Béryl, la solution la plus economique sera en logique cablé , Il faut juste un interrupteur crépusculaire et j'y ajouterai un commutateur 3 positions fixe pour dérogation manuelle
Je t'ai fait une nomenclature (Promis j'ai pas d'action chez Schneider..)
Commutateur : XB5AD33+ ZBE102
Interrupteur crépusculaire : CCT15369 avec cellule murale, attention il y a qu'une sortie NO, il faudra installer un relais inverseur
Relais 12VDC : RSB1A120JDS
a+
Je suis du même avis que Béryl, la solution la plus economique sera en logique cablé , Il faut juste un interrupteur crépusculaire et j'y ajouterai un commutateur 3 positions fixe pour dérogation manuelle
Je t'ai fait une nomenclature (Promis j'ai pas d'action chez Schneider..)
Commutateur : XB5AD33+ ZBE102
Interrupteur crépusculaire : CCT15369 avec cellule murale, attention il y a qu'une sortie NO, il faudra installer un relais inverseur
Relais 12VDC : RSB1A120JDS
a+
-
philou77
- Mi homme - Mi automate

- Messages : 2142
- Enregistré le : 21 oct. 2015, 10:00
- Localisation : Ile de France
Re: Projet : portier électro-hydraulique, schéma
Salut !
+1 avec Itasoft.
La logique câblée, c'est bien mais quand on change d'avis sur un système pas au point, bah c'est vite une usine à gaz !!
+1 avec Itasoft.
La logique câblée, c'est bien mais quand on change d'avis sur un système pas au point, bah c'est vite une usine à gaz !!
Si vous avez compris tout ce que je viens d'écrire, c'est que j'ai dû faire une erreur quelque part ! 
- Béryl
- Mi homme - Mi automate

- Messages : 1953
- Enregistré le : 20 oct. 2015, 12:00
- Localisation : localhost
Re: Projet : portier électro-hydraulique, schéma
De ce que j'ai compris, Harold veut faire simple et lowtec.
Facilement installable et facilement réparable par n'importe qui un peu dégourdi.
De plus, il vise aussi l'économie d'énergie.
Je ne peux que l'encourager dans ce sens, plutôt que pondre un programme usine à gaz qui ne sera modifiable qu'avec un PC
C'est le principe KISS bien connu des Unixiens (un programme qui ne fait qu'une chose, mais qui la fait bien !)
Facilement installable et facilement réparable par n'importe qui un peu dégourdi.
De plus, il vise aussi l'économie d'énergie.
Je ne peux que l'encourager dans ce sens, plutôt que pondre un programme usine à gaz qui ne sera modifiable qu'avec un PC
C'est le principe KISS bien connu des Unixiens (un programme qui ne fait qu'une chose, mais qui la fait bien !)