Bonjour a tous.
A force d’être emmerdé avec des cartes électroniques de portail ou de porte de garage, je me suis mis dans l'idée de le faire moi même.
Le schéma de base n'est pas bien compliqué, et on trouve des cartes Arduino ou ESP avec des sorties a relais déjà toutes faite facilement et beaucoup (énormément) moins cher qu'une carte SOMFY qui crame tous les 3 ou 4 ans pour des raisons obscures (a se demander s'ils les conçoivent exprès pour qu'elles durent pas trop longtemps).
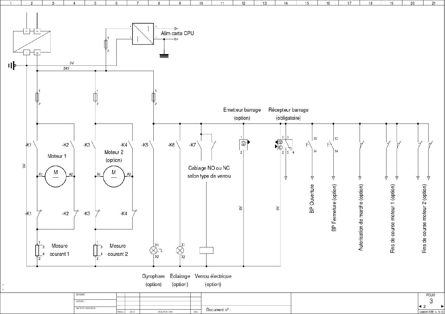
J'ai donc commencé a faire un bout de schéma. La partie <électrotech> c'est plutôt facile pour moi
Et puis, avant d'attaquer la partie électronique, je me suis dit qu'un truc aussi classique, y'a forcement pleins de gens qui l'on fait avant moi, et dans le lot peut être que quelqu'un a déjà de partagé son projet ?
D’après mes calculs il me faut 7 relais, 8 entrées. Un récepteur 433 Mhz me parait une bonne idée, et pourquoi pas un récepteur zigbee histoire de pouvoir piloter le bouzin avec n'importe quelle box Domotique.
Sinon y'a aussi le plan ou je mets un Zélio. Pour la mesure de courant dans les moteurs ça va être un peu plus compliqué, mais le reste ça sera beaucoup plus simple (mais sans grand challenge).
Un portail domotique opensource ?
- Béryl
- Mi homme - Mi automate

- Messages : 1953
- Enregistré le : 20 oct. 2015, 12:00
- Localisation : localhost
Re: Un portail domotique opensource ?
Je partirais plutôt sur un Zelio, plutôt.
Ma petite R3 ne me sert que pour des essais, je ne sais pas si c'est fiable dans le temps, alors que des Zelio, j'en ai qui tournent depuis des années en se faisant complètement oublier !
Sinon, pour tes câblages moteurs, je sais que sur un relai les contacts à ouverture s'ouvrent avant que ceux à fermeture ne se ferment, mais j'aurais pas trop confiance avec le temps.
Ça permet de tester les fusibles, tu me diras !
Ma petite R3 ne me sert que pour des essais, je ne sais pas si c'est fiable dans le temps, alors que des Zelio, j'en ai qui tournent depuis des années en se faisant complètement oublier !
Sinon, pour tes câblages moteurs, je sais que sur un relai les contacts à ouverture s'ouvrent avant que ceux à fermeture ne se ferment, mais j'aurais pas trop confiance avec le temps.
Ça permet de tester les fusibles, tu me diras !
-
MiGaNuTs
- Mi homme - Mi automate

- Messages : 1573
- Enregistré le : 12 nov. 2015, 21:02
- Localisation : 45 - Loiret
- Contact :
Re: Un portail domotique opensource ?
C'est pas forcément explicite sur le schema, mais quand on regarde de pres comment c'est fait un Finder

Techniquement ça voudrait dire qu'a l’intérieur il y'a un arc qui se créé entre la borne NO et la borne NC (en passant la lame qui fait la bascule entre les 2)
Vu la distance entre les lamelles en 24V ça n'arrivera jamais. Le jour ou ça arrive c'est que la foudre est passée par la et dans ce cas je donne peu de chances de survie au fusibles, mais au moteur, a l'automate et a l'alim non plus.
Re: Un portail domotique opensource ?
Oui c’est fiable, il n’y a pas de raison que ça ne le soit pas. Ceci dit, pour ce genre de projet il ne faut pas utiliser de R3 mais plutôt une nano voir une micro si on n’a pas besoin de l’USB. La UNO R3 c’est bien pour prototyper rapidement mais les connecteurs Dupont c’est de la grosse daube. En plus l’écartement entre les deux côté de la carte n’est pas standard et pour finir la masse des entrées analogiques est mal placée et traverse le PCB et récolte les perturbations environnantes, pas top.
Les dernières ESP sont top et pour la domotique, ça embarque wifi et bluetooth, ça mouline vite avec une bonne capacité de mémoire. Je partirai là dessus si je devais faire un projet de ce type.
- Béryl
- Mi homme - Mi automate

- Messages : 1953
- Enregistré le : 20 oct. 2015, 12:00
- Localisation : localhost
Re: Un portail domotique opensource ?
Ah oui, je pensais à des contacteurs bestiaux, moi !MiGaNuTs a écrit : ↑13 oct. 2023, 15:46 C'est pas forcément explicite sur le schema, mais quand on regarde de pres comment c'est fait un Finder
Techniquement ça voudrait dire qu'a l’intérieur il y'a un arc qui se créé entre la borne NO et la borne NC (en passant la lame qui fait la bascule entre les 2)
Vu la distance entre les lamelles en 24V ça n'arrivera jamais. Le jour ou ça arrive c'est que la foudre est passée par la et dans ce cas je donne peu de chances de survie au fusibles, mais au moteur, a l'automate et a l'alim non plus.
C'est le schéma qui m'a enduit d'erreur
-
philou77
- Mi homme - Mi automate

- Messages : 2142
- Enregistré le : 21 oct. 2015, 10:00
- Localisation : Ile de France
Re: Un portail domotique opensource ?
Salut les gars,
Sans vouloir être rabat joie, les cartes de portail sont homologuées !!
C’est vrai que dans l’absolu, c’est simple, mais attention au jour ou un piéton ou un automobiliste va rester coincé dedans le portail !
Il y a plus d’ami dans ce cas
Sinon pour les relais, à partir du moment où on coupe un circuit en charge il y a arc électrique !
D’autant plus sur un moteur !
Faudra bien dimensionner le relais.
Sans vouloir être rabat joie, les cartes de portail sont homologuées !!
C’est vrai que dans l’absolu, c’est simple, mais attention au jour ou un piéton ou un automobiliste va rester coincé dedans le portail !
Il y a plus d’ami dans ce cas
Sinon pour les relais, à partir du moment où on coupe un circuit en charge il y a arc électrique !
D’autant plus sur un moteur !
Faudra bien dimensionner le relais.
Si vous avez compris tout ce que je viens d'écrire, c'est que j'ai dû faire une erreur quelque part ! 
Re: Un portail domotique opensource ?
Un snubber en parallèle de la charge il faut mettre
